

Zum Verkauf stehen Tiefgaragenstellplätze in gefragter Lage in der Mozartstraße 4–8 in Ettlingen. Die Stellplätze befinden sich in einer gepflegten Tiefgarage und bieten eine sichere sowie komfortable Parkmöglichkeit für Anwohner, Pendler oder Kapitalanleger.
Die gute Anbindung an die Innenstadt sowie die umliegende Infrastruktur macht diese Stellplätze besonders attraktiv – sowohl zur Eigennutzung als auch zur Vermietung. Die Zufahrt zur Tiefgarage ist bequem gestaltet und ermöglicht ein einfaches Ein- und Ausparken.
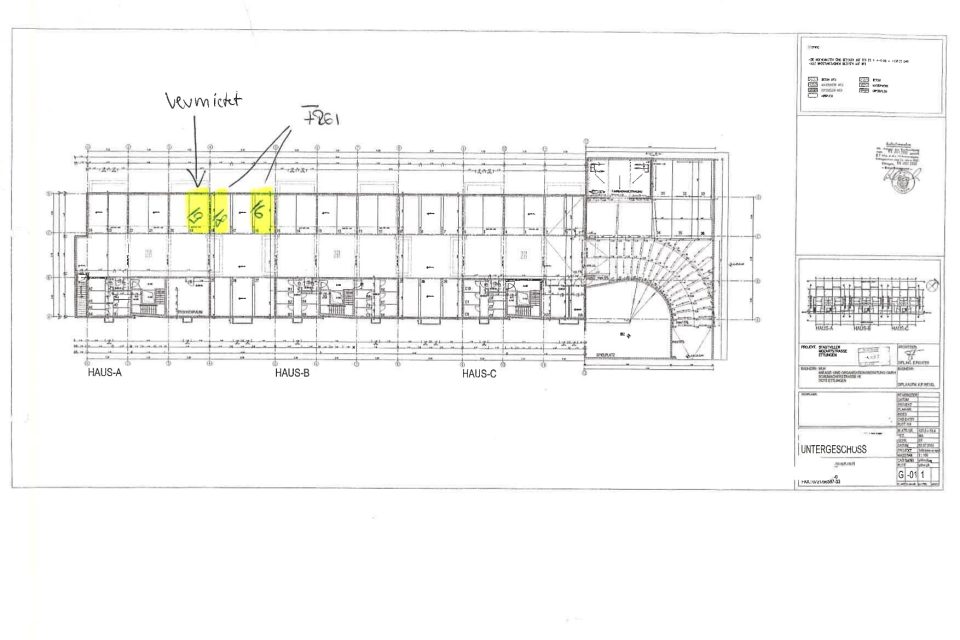
Die zum Verkauf stehenden Stellplätze sind im beigefügten Plan entsprechend markiert, sodass eine klare Zuordnung möglich ist.
07243 70010
Info@wlh-gmbh.com
Schumacherstraße 18, 76275 Ettlingen
WLH Unternehmensgruppe
Schumacherstr. 18
D-76275 Ettlingen
Web: www.wlh-gmbh.com
E-Mail: info@wlh-gmbh.com
© 2025 detha